Duplex / Townhouse Styles
Home Styles
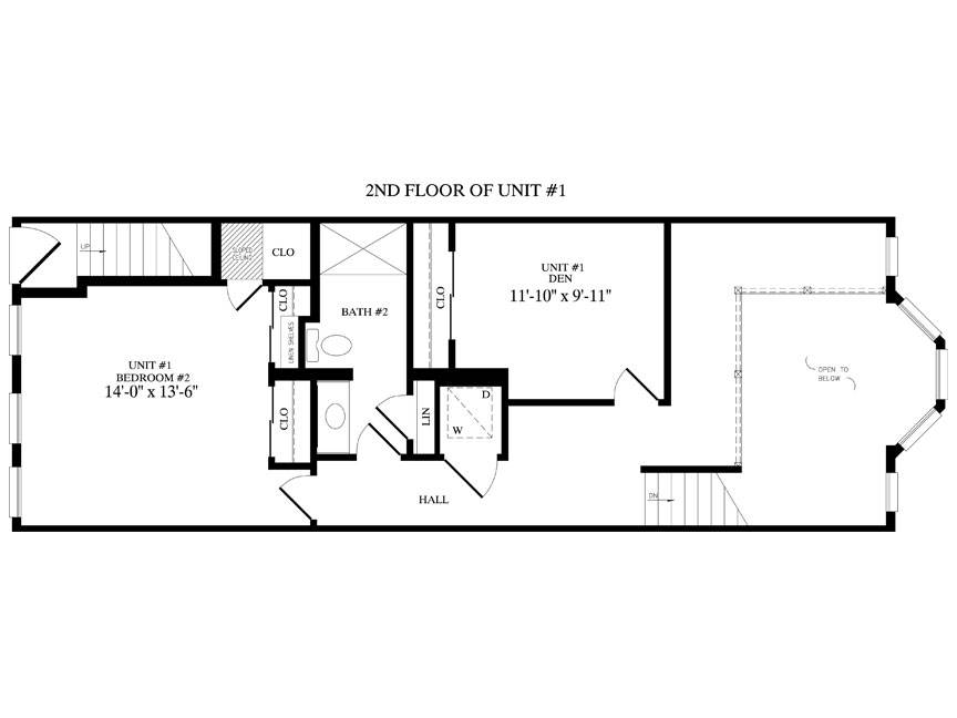
Creedmoor

Creedmoor Duplex-Townhouse
2 bedrooms | 2 bathrooms | 1,500 square feet
Our Duplex Modular Homes and Townhouses provide multiple units for family living and/or offer the opportunity for investment.
The first floor is usually the living room, kitchen and common areas. The unfinished space on the second floor allows you to configure bedrooms and bathrooms to your specifications. These modular townhouses share a common wall but the floor plans can vary for each unit. The factory and Guaranteed Builders & Developers use only the highest quality construction material.
Let us help you design your dream home, helping you save time and money. Please contact us at 508-476-1500 to schedule your free consultation. Our model home display in Douglas, MA is open weekdays 10am to 6pm, Saturday and Sunday 10am to 4pm.
