Colonial & Two Story Styles
Home Styles
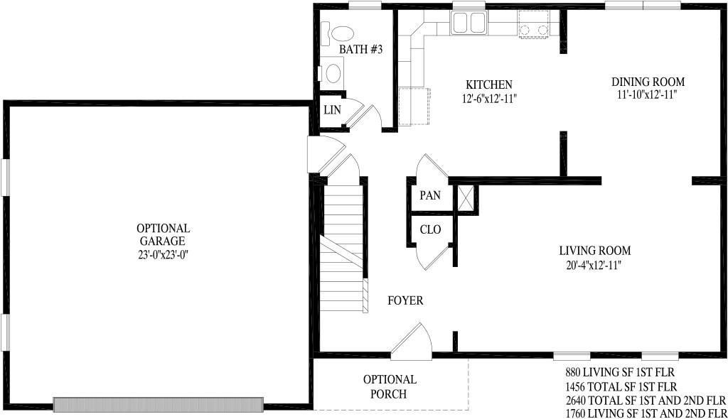
Washington

Washington Modular Home
3 bedrooms | 3 bathrooms | 2,500 square feet
The Washington modular home standard floor plan consists of three bedrooms and three bathrooms.
Modular homes are completely finished sections built at the factory. Sections are transported and assembled at the job site by placing them on the foundation, and on top of and next to each other. Our technicians fasten the boxes together, hiding all of the joints and connecting the electrical, plumbing and HVAC tie-ins. The factory and Guaranteed Builders & Developers use only the highest quality construction material.
The floor plan below is a suggestion for the Washington model. Flexibility to modify and create your own floor plan is available on all modular homes.
Let us help you design your dream home, helping you save time and money. Please contact us at 508-476-1500 to schedule your free consultation. Our model home display in Douglas, MA is open weekdays 10am to 6pm, Saturday and Sunday 10am to 4pm.
